小区壁挂太阳能热水工程设计方案
阳台壁挂式太阳能热水器是专门为高层、小高层住宅配套设计开发,分户式独立配套使用,太阳能固定于向阳面的阳台,水箱则高于太阳能集热器,固定在阳台侧墙,根据水温差自然循环原理,在无动力辅助状态下,即可加热水箱里的水。该项开发设计真正体现了太阳能与建筑及环境一体化的完美结合。随着国家节能减排战略的不断推进,各地政府也在加快推动太阳能热水系统安装的政策实施。
第一部分 设计依据
一 设计要求
根据小区楼型情况,本项目选用四季沐歌阳台壁挂太阳能热水器。太阳能水箱安装在阳台内,集热器安装在阳台外;无论户型大小,一律采用100L承压式水箱。水箱配电辅助加热,以备阴雨天能正常供应热水。
名称 规格型号 技术要求 单位 数量 使用部位
太阳能热水器 100L 含电加热 套 765 阳台
1、现有条件下,水箱以立式设置为主(若需要卧式安装须经我公司现场核实且甲方认可)。
2、对于太阳能室外构件,做防雷设计。
3、平板式太阳能集热板,安装需要和阳台玻璃栏杆配合设计、施工。
二 气象资料
(略)
三、集热器面积校核计算及说明:
日升温值计算
(式——1)
式中:
——太阳集热器采光面积,100升2.0㎡;
——日均用水量,100kg;
——储水箱内水的终止温度(用水温度),℃;
——水的定压比热容,4.18KJ/(㎏·℃);
——水的初始温度, 15℃
——夏季集热器倾斜面上的年月均日辐照量为14.39MJ/㎡
——太阳能保证率,无量纲,选0.55;
——太阳集热器全日集热效率,此处取0.4;
——管路及储水箱热损失率,无量纲,此处取0.2。
将以上参数带入式—1中,
计算得:100升阳台式太阳能热水器,在太阳能保证率是55%的情况下,每天可将15°水加热到45°
第二部分 系统运行原理及系统配置
我们根据“品质先进、热效率高、安全可靠、全自动运行、全年使用”的设计理念,结合贵方的实际用水情况,确定采用阳台分体HFT100自然循环,来完成住户需求的各项功能。
自然循环系统:
一、自然循环阳台式太阳能热水系统
自然循环阳台式太阳能热水系统是以太阳能为主要热源加热热水的系统,并将集热器与储水箱分开,集热器安装在阳台上,通过工质的自然循环将集热器吸收太阳光而得到的热量传输到储水箱,从而得到热水(热量)的系统。
系统主要包括水箱、集热器、管路,集热器吸收热量通过管路自然循环到水箱把水加热。
二、方案设计注意事项:
1、充分了解客户需求,确定安装位置及管路布局,确保水箱底面高于集热器循环口500mm,同时保证集热器与水箱连接管路单根不超过3米。
2、管路杜绝拐直弯,禁止反坡,水平管路倾斜角度不小于10度。
3、为保证热水器得热效果,尽量设计集热器倾斜放置,集热器与墙面倾斜角不小于10度。
三、安装所需配件:
自然循环阳台热水器配件明细表
序号 配件名称 规格及型号 单台数量
1 不锈钢波纹管 六分 6米
2 UV橡塑管 19×φ15 6米
3 波纹管连接接头 六分接头 1个
4 波纹管连接接头 四分接头 3个
5 安全阀 0.7MPa 1个
6 带钩膨胀螺栓 M10×100 2个
7 球阀 四分 2个
8 组合注液阀 1个
9 塑料膨胀管 3.5×30 2个
10 木螺丝 3.5×30 2个
11 防冻液 -25℃ 12kg
自然循环夹套换热水箱系统
(一)系统工作原理:
工作原理:如下图所示,集热器、水箱、循环管路构成温差循环管路。集热器吸收热量加热紫铜管内的介质,使管内的介质与水箱夹套内的介质产生密度差,温差循环根据介质的密度差自然循环完成,热的介质自然往上循环,冷的介质从水箱的夹套回流到集热器,集热器再将回流的介质加热,如此往复,水箱内的水被加热。整个过程的运行无需要循环泵。电加热构成辅助热源部分,用于太阳能不足或对水温要求较高时的热量补充。
原理图
(二)系统概要:
1、控制器功能介绍:控制器由线控器、主控制器组成,显示采用LED;主控制器负责采集各种温度及控制各种输出设备。
水箱设置温度:35℃-65℃
显示功能:
1)水箱上有显示太阳能和电加热两种工作状态的指示灯。
2)显示面板下方有预约、智能保护、太阳能模式、经济模式、 日常模式和增容模式六个 功能显示。
3)显示面板左方显示实际温度(℃),右方显示设定温度(℃)。
管道防冻:当用水管道温度T≤5℃时,防冻电热带启动;当温度≥15℃时,防冻电热带关闭。
复位功能:当用户想对系统参数恢复出厂默认值时,可按复位键将各种参数恢复出厂默认设置。
2、系统组成部件介绍:
集热器:平板集热器主要包括吸热板、透明盖板、隔热层和外壳等几部分组成。
储水箱:储水箱采用搪瓷内胆。搪瓷内胆采用基材BTC330R搪瓷专用钢板,厚度为2mm,自动焊接工艺加工而成,独有镁棒和电子阳极双重防腐,系统防腐性能更好,长时间使用不用更换镁棒。水箱保温采用聚氨酯高温高压工艺一次性整体发泡,保温层厚度为50mm,具有更好的保温性能。储水箱外皮0.5mm镀锌板,有烤漆和喷塑两种加工工艺,烤漆颜色为香槟金色,更加美观;喷塑为乳白色。
循环管路:循环管路是系统的热量传输管道,安全可靠,包括介质传输管道、注液阀等。
智控系统:智屏智控系统,显示更直观,使用更方便。
3、系统参数
水箱最大工作压力:0.7Mpa
最高工作温度:集热器为 120℃,储水箱为 90℃
辅助热源额定功率:2.0KW
抗冻要求极限:用户所在地10年内最低温度
4、 管道、配件、保温
(1)管件:集热循环管道采用优质不锈钢波纹管,连接件采用卡套式连接。保温采用橡塑保温。用水管道的冷热水管采用铝塑复合管。
(2)其它原装配件:“SED赛德”热辅系统:具备漏电保护插头,手动热断路器。水电隔离外加漏电保护,彻底安全,保持15年无事故的优良记录。通过3C强制认证。
5、 电加热辅助能源系统
电加热采用的是镍铬合金英格莱800电加热,含镍33%,含铬22%,抗腐蚀性强,抗高温,有卓越的抵抗氯化压力,使用功率2000W,能防干烧72小时,使用寿命长。
第三部分 施工规范
一、产品安装方案
1、集热器安装注意事项:
a:集热器应安装在阳台处阳光照射比较充分的地方。
b:集热器要固定牢固。
c:为保持美观,集热器应水平安装在阳台的中间位置。
安装步骤:
1、连接支架
在包装箱里取出可调支架和挂钩,如图所示用挂钩和可调支架用M8×16的螺栓连接、拧紧。

注:可调角度范围是:0°、10°、15°、20°
2、确定挂件的中心距
根据热水器的型号确定挂件的中心距,中心距的尺寸如下图所示:
(单位:mm)

3、确定挂件的位置
测量阳台的宽度和高度,根据挂件的尺寸和中心距,确定出挂件垂直方向的位置,用铅笔在阳台垂直地面的方向刻线。挂件顶端到阳台顶端的最小距离为150mm(如果阳台尺寸较小,可以适当调整)的空间布置集热器的管路。每一片集热器的两个挂件中,集热器出口位置的挂件比另一个挂件安装位置高20mm,以利于管道循环。
4、打孔
注:根据阳台的具体形式,也可以采用其他的固定方式。固定需要用M8×80的膨胀螺栓,打直径12mm的2个孔。打孔时系好安全带,身体从窗口中探出去,同时把冲击钻或者电锤用绳子捆绑牢固,预防孔时掉落。
5、安装膨胀螺栓
打完孔以后安装膨胀螺栓。为避免敲击时不会砸坏螺栓顶部的螺纹,使螺母能够轻松的旋进,安装时先在螺栓的头部拧上两个螺母。
6、 打穿墙孔
根据集热器的位置和室内管路的布置,确定打穿墙孔的位置,然后在墙上打¢75mm的圆孔。为了防止雨水从孔内倒灌,一般要求穿墙孔带5度的斜度。打好孔后,在墙孔内外两侧加装饰盖。如图所示:
7、固定集热器
吊装集热器用足够粗的绳子或者专用的吊装工具。吊装时,注意左右两端用力平衡,防止集热器被阳台或障碍物碰坏,在吊装到手能拉到的边框的时候,用手抓住边框,把集热器提起,将集热器的下边框挂在安装好的挂件的挂钩上面,用M8×16的螺栓把集热器的上横框和挂件固定牢固。整体效果图如下所示:
二、水箱安装
选择水箱安装的位置
1、选择承重墙面。
2、为使安装后管路简洁、美观,水箱应距离集热器出口较近。
3、避免水箱遮挡阳台窗户,影响采光。
4、靠近排水口或地漏。
安装步骤:
1、钻孔:根据划线位置,用冲击钻钻两个¢14的孔,光度110mm,并清除孔内的水泥粉末。
2、膨胀螺栓预紧:将膨胀螺栓放入刚钻好的孔中,保证胀管全部进入孔内,对膨胀螺栓进行预紧,使胀管与孔壁结合紧密,预紧后使挂钩朝上。
3、自然循环阳台热水器固定:将自然循环阳台热水器外挂架上的两个方孔分别对准膨胀螺栓挂钩挂牢。
三、管路连接
管路连接包括管路的铺设,保温和固定等,安装过程中注意管路保温处理。
管路铺设遵循以下原则:
● 集热器与水箱连接管路单根长度不超过3米。
● 管路杜绝拐直弯,禁止反坡,水平管路倾斜角度不小于5度。
●水箱的循环入口、循环出口、循环泵的进出口都采用活结形式。
1、连接集热器
集热器连接方式如下图所示。连接好后将管路穿过做好的墙孔,以备与室内管路连接。
2、管路连接
依照各个水嘴的位置关系,确定波纹管的长度和走向,把橡塑保温管套在波纹管上,然后再用波纹管专用接头连接并紧固。
3、管路保温
确认系统运行正常后对管路进行保温,保温材料采用φ19×15橡塑保温管,在东北地区可适当加厚,管路没有节点处可在管路连接时直接进行保温。在节点处或焊接处,截取适当的保温管长度后,用剪刀将保温管剪开,然后套于管路,再用保温管专用胶涂于截面处,当胶不粘手时,再将保温管粘贴到一起。
四、显控器的安装
参考相关示意图,按如下步骤固定显控器:
1、用塑料挂具上的固定圆孔先在准备安装显控器的墙上定好打孔点,然后打¢6孔,以符合塑料挂具为准。
2、把塑料膨胀管塞入孔内,用ST3.5×32的自攻螺钉将塑料挂具固定在墙上,然后将显控器背面的两个挂孔在塑料挂具的固定挂钩上即可。
3、拧下右端盖上的限位螺钉,打开水箱右端盖,将显控器线穿过外皮上的防水接头,固定在主线路板线控器插孔处并将防水接头拧紧,再装上右端盖,拧紧限位螺钉。
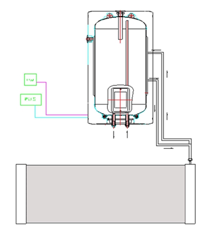
系统接线示意


<更多安装现场照片,欢迎浏览本站-工程案例>

方案设计施工:上海宝第居安环境工程技术有限公司
上海宝第新能源科技有限公司
地 址:上海市闵行区景联路439号4A220
电 话:021-54392270
全国服务热线:400-800-8750
网 址:www.podiii.com
邮 箱:podiii@163.com


